



4.930 avis1 / 29

2 / 29

le jardin derrière la maison
3 / 29

séjour
4 / 29

séjour
5 / 29

salon
6 / 29

7 / 29

8 / 29

9 / 29

la terrasse sous la tonnelle
10 / 29

Le jardin avec sa terrasse bien exposée et sa pergola.
11 / 29

salon
12 / 29

salon avec coin tv dvd téléphone box internet
13 / 29

la chambre Pic du Ger à 2 lits
14 / 29

15 / 29

la chambre côté église
16 / 29

17 / 29

la salle d'eau (douche-lavabo-WC)
18 / 29

19 / 29

20 / 29

un, petit salon autour du poêle à granulés
21 / 29

la maison en arrivant du haut du village
22 / 29

Le Pic du Ger
23 / 29

la maison vue du dessus
24 / 29

le jardin et la terrasse sous la neige.
25 / 29

vue sur les Eaux-Bonnes depuis l'entrée d'AAS
26 / 29

La vue sur le pic du Ger depuis la maison.
27 / 29

le parking devant le garage
28 / 29

le jardin depuis la terrasse
29 / 29

les Eaux-Bonnes et le Pic du Ger
A 4 km de Laruns et 15mn de Gourette, pour découvrir les montagnes d'Ossau à son rythme
Description
Maison indépendante typique dans petit village de montagne. Gîte à 1/4 d'heure des pistes de ski.
R.d.c. Garage (lave-linge).
1er étage (accès en rez-de-jardin depuis terrasse) : Cuisine ( frigo-congélateur, lave-vaisselle, four électrique, micro-ondes, sèche-linge, plaques induction).
Coin-repas (poêle à granules), salon (TV grand écran, lecteur DVD, box internet avec la fibre).
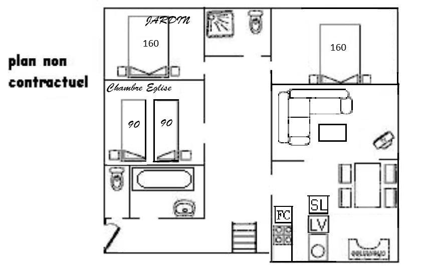
Salle d'eau/wc. Salle de bains. Wc. 3 chambres (2 lits 160, 2 lits 90). Lits faits à l'arrivée et linge de toilette inclus. Chauffage électrique en supplément.
Terrasse agréable et bien exposée au Sud, à l'arrière de la maison, sous pergola. Jardin clos, salon de jardin, barbecue et plancha au gaz.
Annonce d'un particulier
Charges non comprises
La maison
Chambre 1 13 m² 1er étage
- 1 Lit double (160x190)
orange. 1 lit 160. lattes et ressorts épais ferme. 2 oreillers et 1 traversin. parquet. Fenêtre et volet. Commode et portant avec cintres. couette et 2 couvertures. coté église.
Chambre 2 12 m² 1er étage
- 1 Lit double (160x190)
mauve. 1 lit 160. lattes et ressorts super épais neuf ferme. Parquet. armoire sans penderie. fenêtre et volet. couette et 2 couvertures.
Chambre 3 9 m² 1er étage
- 2 Lits simples (90x190)
2 lits 90. 1 fenêtre avec volet. 1 couette et 2 couvertures. lattes et bultex épais neuf. commode.
Equipements intérieurs
- Chauffage électrique
Services
- Forfait ménage (fin de séjour)80.00 € (tarif pour tout le séjour)
Loisirs
- Golf
50 km
- Lac de baignade
7 km
- Médecin
8 km
- Pharmacie
2 km
- Piscine
8 km
- Plage
110 km
- Ski de fond
8 km
- Ski de piste
8 km
Thématiques de votre séjour
- Trophées 2025Les « Trophées clients Gîtes de France® » distinguent les hébergements qui ont ont obtenu une note globale moyenne remarquable sur l'année 2025. voici les critères pour la sélection des Trophées Clients 2021 - Note moyenne globale >= 4,9 - Nombre d'avis minimum Gîtes >= 12 - Nombre d'avis minimum Chambre >= 18 Gîtes de France® souhaite donner à ces hébergements et à leurs propriétaires, la reconnaissance naturelle et légitime qu’ils méritent, fondée sur des avis certifiés et déposés par ceux qui comptent le plus : nos vacanciers.
- Equipement bébéLes locations de vacances adaptées pour accueillir un bébé. Hébergement possédant un équipement adapté au bébé. Plus besoin de déménager la chambre de bébé et de surcharger la voiture, vos hôtes mettent à disposition le matériel nécessaire pour séjourner avec vos enfants. L'équipement indispensable pour recevoir bébé est prévu : chaise haute, lit, mixeur, baignoire et matelas ou table à langer. La prestation est comprise dans le prix de la location.
- A proximité des pistes de skiGourette, La Pierre St Martin, Artouste en Béarn pour le ski de piste; Issarbe, Le somport, Iraty, le Braca, le Pont de Camps…pour le ski de fond, les raquettes et la nature préservée… Eternels enfants à la recherche de pentes à dévaler en luge ou acharnés de la bataille de boule de neige, découvrez nos hébergements proches des lieux de vos passions. Cet hébergement a été choisi pour sa proximité des pistes de ski de piste et de ski de fond (à moins de 20 km)
- Ski de pisteTous les hébergements à maximum 15 km des pistes de ski
- Ski de fondTous les hébergements à maximum 15 km des pistes de fond
- CampagneTous les hébergements hors Mer, Montagne, Villes
Localisation
Votre hébergement
Bien-être
GRANDS SITES
Lacs incontournables
Nos partenaires
STATIONS DE SKI
Sites touristiques
Expérience Canyon
Activités locales : Plongez au cœur de cette région époustouflante et partagez des sensations fortes en toute sécurité.Venez découvrir les canyons du Béarn avec les guides professionnels. Au programme du fun, du rire, des sensations fortes, et la découverte de paysages inédits!Lieux à visiter : Remise de 10% sur l'activitéZoo d'Asson
Activités locales : Des animaux rares , fascinants et attachants dans un environnement sauvage et relaxant . Outre les grandes stars du parc telles que Radjah le tigre blanc , les pandas roux , les panthères des neiges et les hippopotames pygmées et une centaine espèces tout aussi captivantes.Lieux à visiter : 1 sachet de pop-corn offert par famillePays du Béarn
Parc national des Pyrénées
Station de Ski de Gourette
Activités locales : Domaine skiable pour tous les styles de pratique, avec un espace débutant, un secteur évolution et un secteur pour skieurs confirmés et amateurs de sensations avec les espaces freestyle.Lieux à visiter : Sans oublier, l’offre de parcours raquettes, piéton, restaurants d’altitude et expériences aux côtés des experts de la station qui raviront petits et grands.Station de Ski Artouste
Activités locales : Station conviviale, sportive, dynamique et atypique, avec son domaine d’altitude pleine nature et son village au bord du Lac de Fabrèges.Lieux à visiter : 18 pistes : 2 vertes, 10 bleues, 3 rouges, 2 noires, 1 kid park et 1 piste de luge, 1 boarder cross 10 remontées mécaniques : 1 télécabine, 2 télésièges, 5 téléskis, 1 tapis neige
Tarifs & Disponibilités
- Semaine
- Week-end
- Mid-week
- Autres dates
- Avril 2026
- Mai 2026
Du 04/04/2026 au 11/04/2026 - | Du 15/04/2026 au 22/04/2026 Déjà réservé | Du 18/04/2026 au 25/04/2026 Déjà réservé | Du 25/04/2026 au 02/05/2026 Voir les disponibilités |
Le prix comprend
- Les draps et le linge de toilette
- L'eau dans la limite d'une consommation raisonnable
- Un forfait de 8 kwh/jour d'électricité
Le prix ne comprend pas
- Les frais de chauffage électrique
- Le sac de granules à 5€ à régler au propriétaire
Le propriétaire
Avis clients




4.930 avis- (28 avis)





- (2 avis)





- (0 avis)





- (0 avis)





- (0 avis)





FC
Séjour en famille
du 07/02/2026 au 14/02/2026
Note globale : 




Publié le 03/03/2026
Gîte tout confort
Gîte confortable très propre et bien équipé dans un petit village de montagne un peu isolé. Un garage bien pratique pour la voiture et le matériel de ski. Un séjour agréable au rythme des cloches de l'église ... Lire la suite
Je recommanderais cette location à un ami.




















LADL
Séjour en famille
du 28/12/2025 au 03/01/2026
Note globale : 




Publié le 14/01/2026
Séjour Pic du Ger
Nous avons passés un agréable séjour avec notre famille dans le logement "Pic du Ger" très bien situé dans le village de Aas, proche de la station des Gourettes. Le logement est très bien équipé et une ... Lire la suite
Je recommanderais cette location à un ami.




















Votre séjour
Besoin d'aide pour réserver ?
GITES DE FRANCE BEARN PAYS BASQUE LANDES



















